Предпусковой ЭЛЕКТРОподогреватель двигателя
#21
Отправлено 14 Декабрь 2012 - 19:44
#22
Отправлено 15 Декабрь 2012 - 11:35
#23
Отправлено 01 Июль 2013 - 0:59
#24
Отправлено 03 Сентябрь 2013 - 19:22
1. на сколько прогревается весь двигатель?
2. сколько необходимо времени для прогрева в -25 С
3. какова его мощность в ватах
4. хочу подогрев именно поддона так как 1 нет желания вмешиваться в систему охлаждения.
и на мой взгляд проще установить подогрев на поддон и эффективнее нагревать масло .
поделитесь опытом если таковой есть?
#25
Отправлено 04 Сентябрь 2013 - 10:40
#26
Отправлено 08 Октябрь 2013 - 10:14
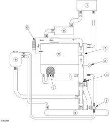
Кто ставил предпусковой электроподогреватель подскажите куда поставили.У меня 2.0 дизель на сайте "северс-м" есть подключение на 2.3 и 2.0 бензин,у меня так же?? как я понял в обоих случаях берут со шланга с блока под маслянным фильтром ,а отдают в верхний шланг радиатора ? может у кого есть схема системы охолождения этого мотора .спасибо
#27
Отправлено 09 Октябрь 2013 - 8:31
Я ставил на 2.0 tdci. Вход у нижней точки радиатора, выход в печку.
#28
Отправлено 09 Октябрь 2013 - 9:09
Вот здесь по другому поэтому и спрашиваю.А выход из печки это который правый и идет в термостат( правый если открыл капот и смотришь). А что ставили,какой обогреватель? Смотрю на " северс- м"
#30
Отправлено 09 Октябрь 2013 - 13:51
#31
Отправлено 09 Октябрь 2013 - 14:33
А почему именно hot start ? Хотя единственное что в нем не понравилось, это то что нет возможности сделать розетку в бампер.сколько уже стоит , все ли устраивает?
Хотстарт на форуме продавали по хорошей цене, поэтому взял. Стоит с августа, пользуюсь каждое утро, но пока ниже -3 не видел. Пока все устраивает. А в бампер я не рассматривал по той причине, что у знакомого в бампере стоит розетка и выглядит зимой не очень приятно.
#32
Отправлено 09 Октябрь 2013 - 14:53
#33
Отправлено 09 Октябрь 2013 - 15:07
Жаль фоток нет, а к обогревателю был какой- то установочный комплект? И куда пристроили сам обогреватель? Извинюсь что много вопросов , не хочется ошибиться все-таки шланги резать, и конечно хочется потратить как можно меньше времени на установку.
нет, комплекта установки не было. Покупал все в сантехническом магазине. Сначала установил не правильно и грелся только радиатор.
Обогреватель стоит у радиатора, я не знаю как называется это место.
#34
Отправлено 09 Октябрь 2013 - 15:12
#35
Отправлено 09 Октябрь 2013 - 15:15
я попробую завтра сфоткать, если не забуду.
#36
Отправлено 09 Октябрь 2013 - 15:54
#37
Отправлено 09 Октябрь 2013 - 20:05
с телефона плохо получается...

#38
Отправлено 09 Октябрь 2013 - 21:44
Огромное человеческое спасибо
#40
Отправлено 16 Октябрь 2013 - 15:52
времени не было до гаража доехать размер шлангов штангелем замерить,чтобы заказать сразу монтажный комплект.И не мог решить северс или тоже хотстарт. сделаю обязательно напишу.
Количество пользователей, читающих эту тему: 0
0 пользователей, 0 гостей, 0 анонимных













